Strona główna
Oferta
Projekt wnętrz
Projekt architektoniczny
Architektura
Wnętrza
Wizualizacje
Blog
O mnie
Kontakt
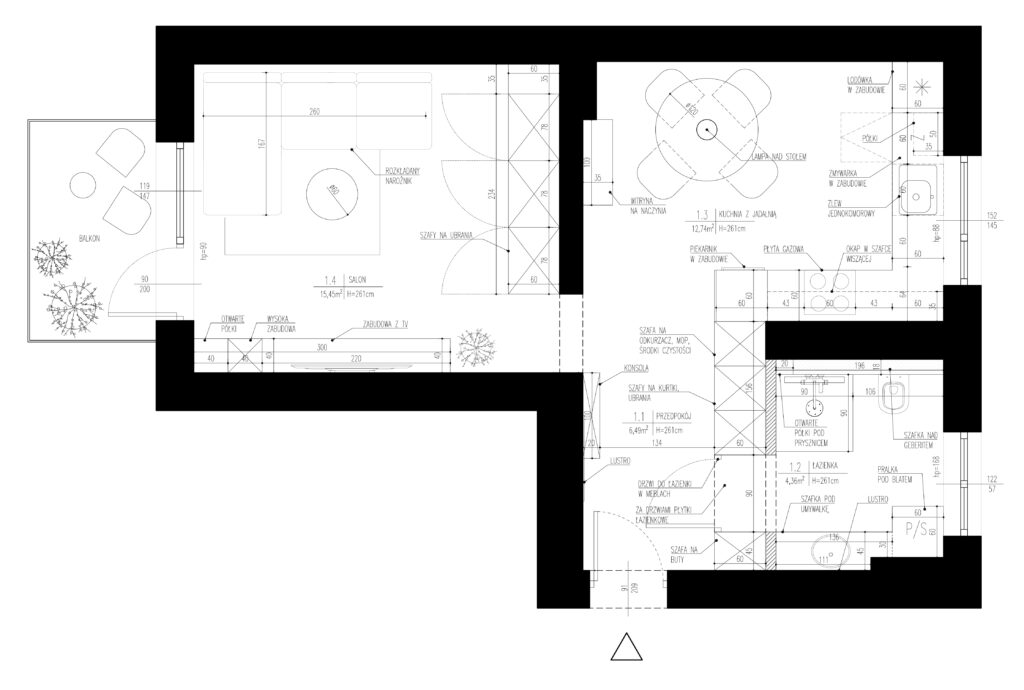
projekt wnętrza mieszkania pod gnieznem
Powierzchnia:
39,04m²
Data:
LIPIEC 2025