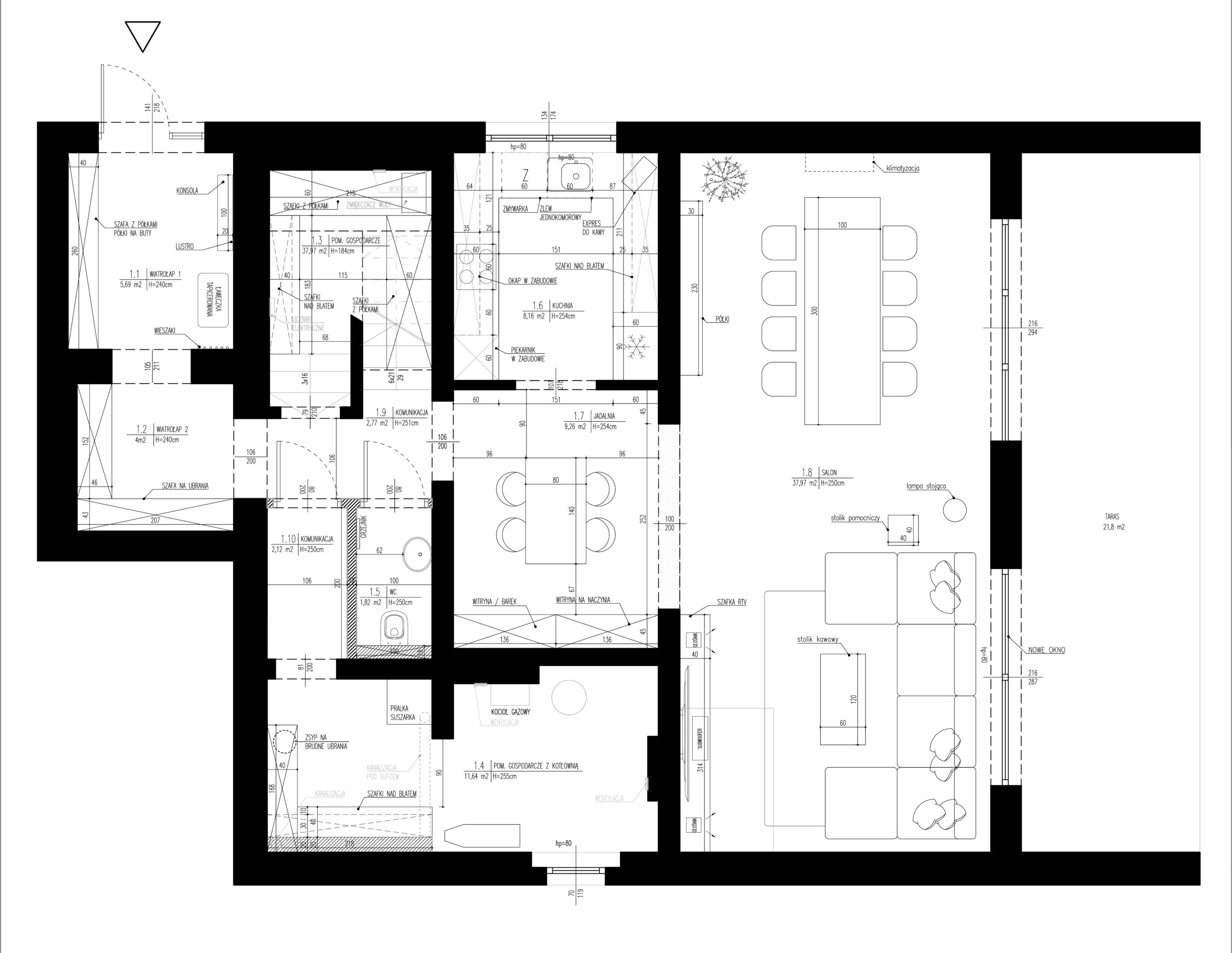
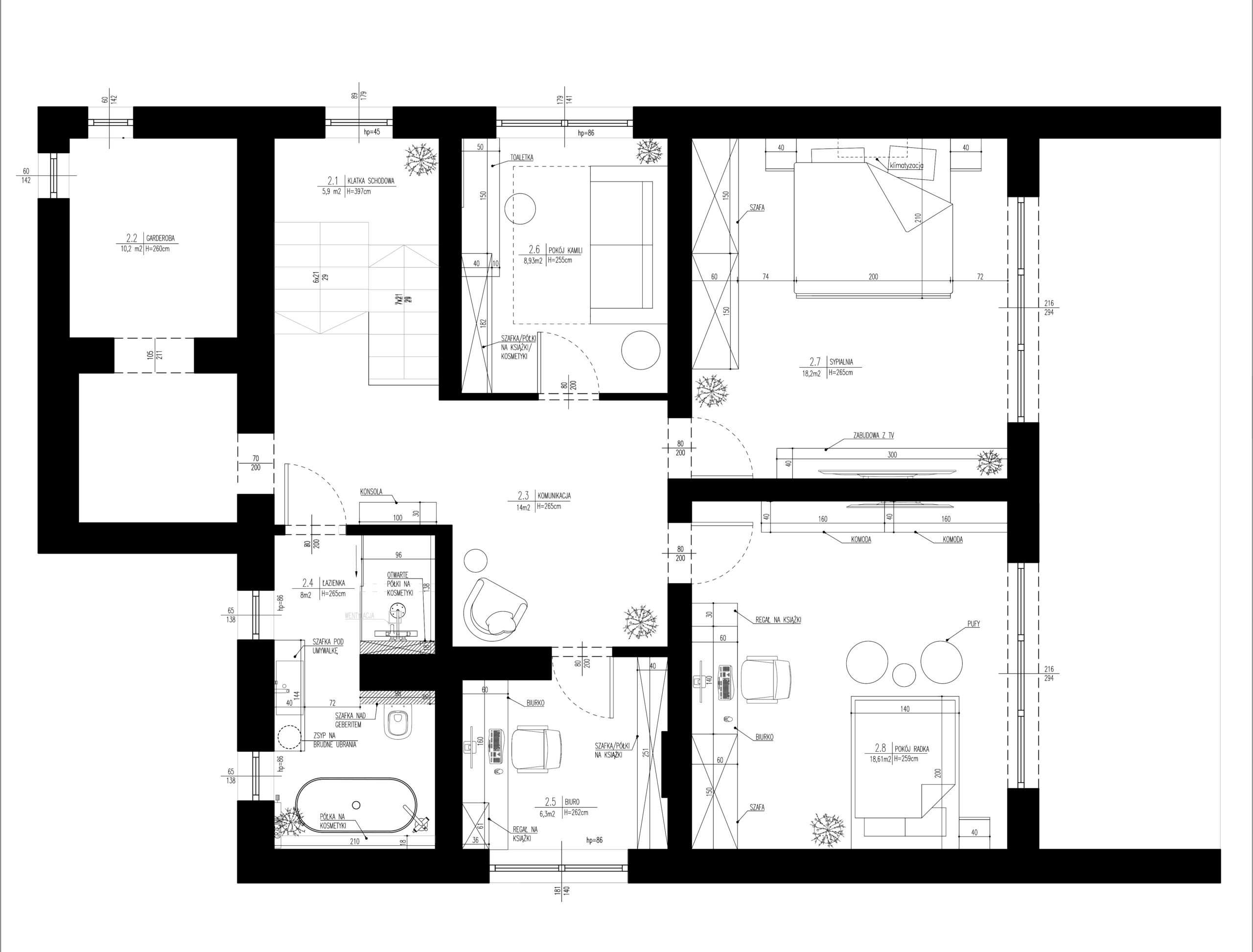
projekt wnętrzA domu jednorodzinnego

 


 

Powierzchnia: 177,87m²

Data: PAŹDZIERNIK 2024